
不得不服,现在的宝爸宝妈们实在是太卷太拼了!
在北京,有一对90后年轻夫妇,为了让上小学的孩子得到更好的教育,从大房子搬到海淀区首师大的家属院,并把生活所需的一切都放在里面。

他们家虽然是老破小,但经过多次空间布局的推演,布置出了2室1厅1厨1卫的布局,整体大了一倍,也完美诠释出什么叫“极致”。
全屋地面铺设灰色瓷砖,大白墙+无吊顶,局部红色和蓝色的点缀,超耐看。
话不多说,跟随@本设家居的步伐,一起去瞧瞧吧。
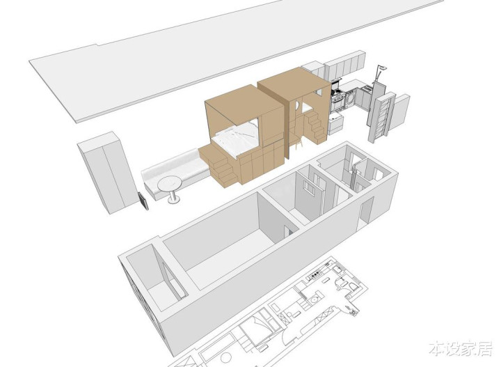
平面布置图


这套房子使用面积约37㎡,是典型的“带鱼”形状户型,原始是一居室的格局,根据屋主的生活习惯和居住需求,进行局部优化:
1.拆除厨房的局部隔墙,扩大面积,并增设洗漱台,卫生间实现干湿分离。
2.原有的客厅改成儿童房,与主卧保持独立,利用多功能盒体的设计,抬高部分巧妙地做储物空间。
玄关


打开入户门,左边是一组到顶玄关柜,与地面保留20公分悬空,刚好放置当季常穿鞋,内部暗藏感应灯带,为晚上回家,或夜间上卫生间提供照明。

柜体门内嵌镜子,以古美色的金属条收边,不仅让视觉空间得到延伸,也显得更加简洁,有格调。
卫生间


右边是卫生间,外置的洗漱台在玄关柜对面,不管是洗浴还是如厕都宽敞多了,墙地面铺贴乳白色瓷砖,营造出一个清新且舒适的卫浴空间。
厨房

厨房与卫生间的局部隔墙,采用弧形的磨砂玻璃,这样不仅采光好,视觉通透,空间看起来也更加柔和。
L型的橱柜设计,可以容纳更多的厨房用品和更大的操作台面,乳白色的柜门有提亮空间的效果,再将洗烘机嵌入式安装到地柜中,可以轻松解决上下水问题,也方便日常使用。
进出厨房,在不经的转身和回眸,很难不被那一抹大红色的墙砖所惊艳。

站在厨房门口看客厅,暖白色的主基调,结合蓝色元素,营造出一个小而精、小而美的简洁空间。
儿童房


儿童房由原厅改造而来,睡眠区抬高,下部做储物,并增加带储物功能的楼梯,在暖光灯的渲染下温馨又舒适。
同时,与厨房的隔墙上方留了一扇采光窗,解决了暗间采光不足或产生憋闷的问题。

靠墙还设置了学习桌,满足日常学习和阅读的需求,上方的吊柜和抽屉收纳小朋友看的书籍和玩具,构建出一个自由舒适的小天地,太完美了。
主卧



原来的卧室一分为二,做主卧和客厅,没有隔断的阻碍,不仅增加卧室的采光,还可以让视觉效果变得更加通透、敞亮。
同样是地面抬高1.1米做储物空间,上方是1.8x2米的床架,简单的色彩自带静谧感,简洁的造型,让睡眠更加静心。
从细节可以看出,墙面和天花做了1公分的造型,轻轻勾勒出独立空间,也是很精致了。
客厅



客厅靠墙定制一组卡座,电视墙则采用电视机和储物柜相结合的设计,深灰色与乳白色搭配得相得益彰,而下方嵌入式安装的壁炉,则为寒冬季节的空间,增添一份温暖。
阳台除了晾晒,还有各种绿植,与窗外的景色形成呼应,活力满满,好治愈。
看完全屋,他们家对空间的极致利用,卧室抬高的设计,大大增加了储物空间,让家居生活更加游刃有余,颠覆了传统的空间思维,非常值得借鉴。
本期家居案例就分享到这里,感谢您的阅读,下期见!
银河配资提示:文章来自网络,不代表本站观点。